Rif: VR061
ALTOFONTE
PALERMO
CASINO DI CACCIA (SEC. XVII) DI RE RUGGERO IL NORMANNO UBICATO IN POSIZIONE PANORAMICA NEL TERRITORIO DEL COMUNE DI ALTOFONTE (PA).
Dati dimensionali: l'estensione di tutto il complesso è di circa un ettaro, comprende diverse particelle confinanti tra loro, fra cui quella che costituisce l'impianto edificato, con una superficie coperta di mq,450 circa, su cui si sviluppano in parte piani soprastanti, oggi in stato di avanzato degrado, e mq.1200 circa di corte chiusa da mura di cinta.
Ubicazione e descrizione: il complesso si colloca a ridosso dello scorrimento veloce Palermo-Sciacca, nei pressi del centro abitato di Altofonte, a circa 10 km. dal centro abitato di Palermo, nella contrada detta “Il Parco” per essere stata residenza di villeggiatura e centro di caccia di Re Ruggero il Normanno, edificato nel XVII secolo serviva come luogo di ristoro delle persone e degli animali che partecipavano alle battute che si tenevano in tale zona ricca di selvaggina. Questa area fa parte del territorio palermitano che, nello stesso periodo, fu interessata dall'insorgere di grandi ville, fenomeno che inizialmente si sviluppò sul versante di Bagheria, successivamente sulla piana dei colli di Palermo e infine sul versante di Monreale.
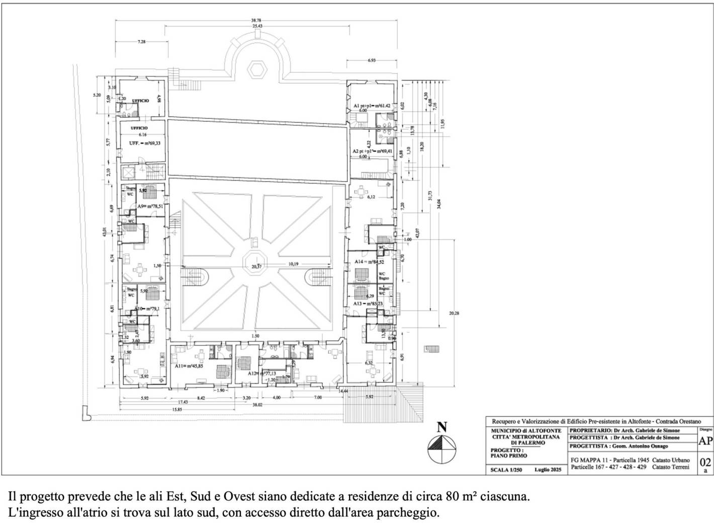
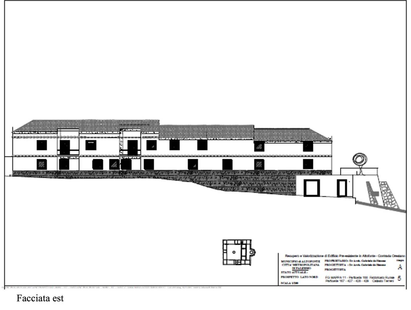
L'impianto è costituito da un corpo a forma di “U” con corte centrale; l'abitazione padronale è posta di fronte al portone di accesso, dalla cui terrazza belvedere, posta sul fronte nord, si può ammirare una splendida vista panoramica che inizia da Monreale, prosegue poi su Monte Cuccio, la Piana dei Colli, Monte Pellegrino, la città di Palermo ed il suo porto, per finire sulle montagne della conca d'oro. In questo ampio scenario il giardino degli aranci di impianto arabo. La restante porzione del complesso era destinata alle abitazioni delle persone che accudivano alle varie attività e ai magazzini. Per questo complesso è stato redatto un progetto, di cui si vedono alcuni disegni e random nelle foto, per la realizzazione di una Residenza Sanitaria Assistita e valorizzazione di edificio antico esistente ad Altofonte.
Dati dimensionali: l'estensione di tutto il complesso è di circa un ettaro, comprende diverse particelle confinanti tra loro, fra cui quella che costituisce l'impianto edificato, con una superficie coperta di mq,450 circa, su cui si sviluppano in parte piani soprastanti, oggi in stato di avanzato degrado, e mq.1200 circa di corte chiusa da mura di cinta.
Ubicazione e descrizione: il complesso si colloca a ridosso dello scorrimento veloce Palermo-Sciacca, nei pressi del centro abitato di Altofonte, a circa 10 km. dal centro abitato di Palermo, nella contrada detta “Il Parco” per essere stata residenza di villeggiatura e centro di caccia di Re Ruggero il Normanno, edificato nel XVII secolo serviva come luogo di ristoro delle persone e degli animali che partecipavano alle battute che si tenevano in tale zona ricca di selvaggina. Questa area fa parte del territorio palermitano che, nello stesso periodo, fu interessata dall'insorgere di grandi ville, fenomeno che inizialmente si sviluppò sul versante di Bagheria, successivamente sulla piana dei colli di Palermo e infine sul versante di Monreale.
L'impianto è costituito da un corpo a forma di “U” con corte centrale; l'abitazione padronale è posta di fronte al portone di accesso, dalla cui terrazza belvedere, posta sul fronte nord, si può ammirare una splendida vista panoramica che inizia da Monreale, prosegue poi su Monte Cuccio, la Piana dei Colli, Monte Pellegrino, la città di Palermo ed il suo porto, per finire sulle montagne della conca d'oro. In questo ampio scenario il giardino degli aranci di impianto arabo. La restante porzione del complesso era destinata alle abitazioni delle persone che accudivano alle varie attività e ai magazzini. Per questo complesso è stato redatto un progetto, di cui si vedono alcuni disegni e random nelle foto, per la realizzazione di una Residenza Sanitaria Assistita e valorizzazione di edificio antico esistente ad Altofonte.
Consistenze
| Descrizione | Superficie | Sup. comm. |
|---|---|---|
| Principali | ||
| Altro - piano terra | 450 Mq | 450 Mqc |
| Accessorie | ||
| Terreno - piano terra | 10.000 Mq | 100 Mqc |
| Totale | 550 Mqc | |
